candidat
Desena Edició : : Projectes de creació o reforma integral de museus i equipaments patrimonials
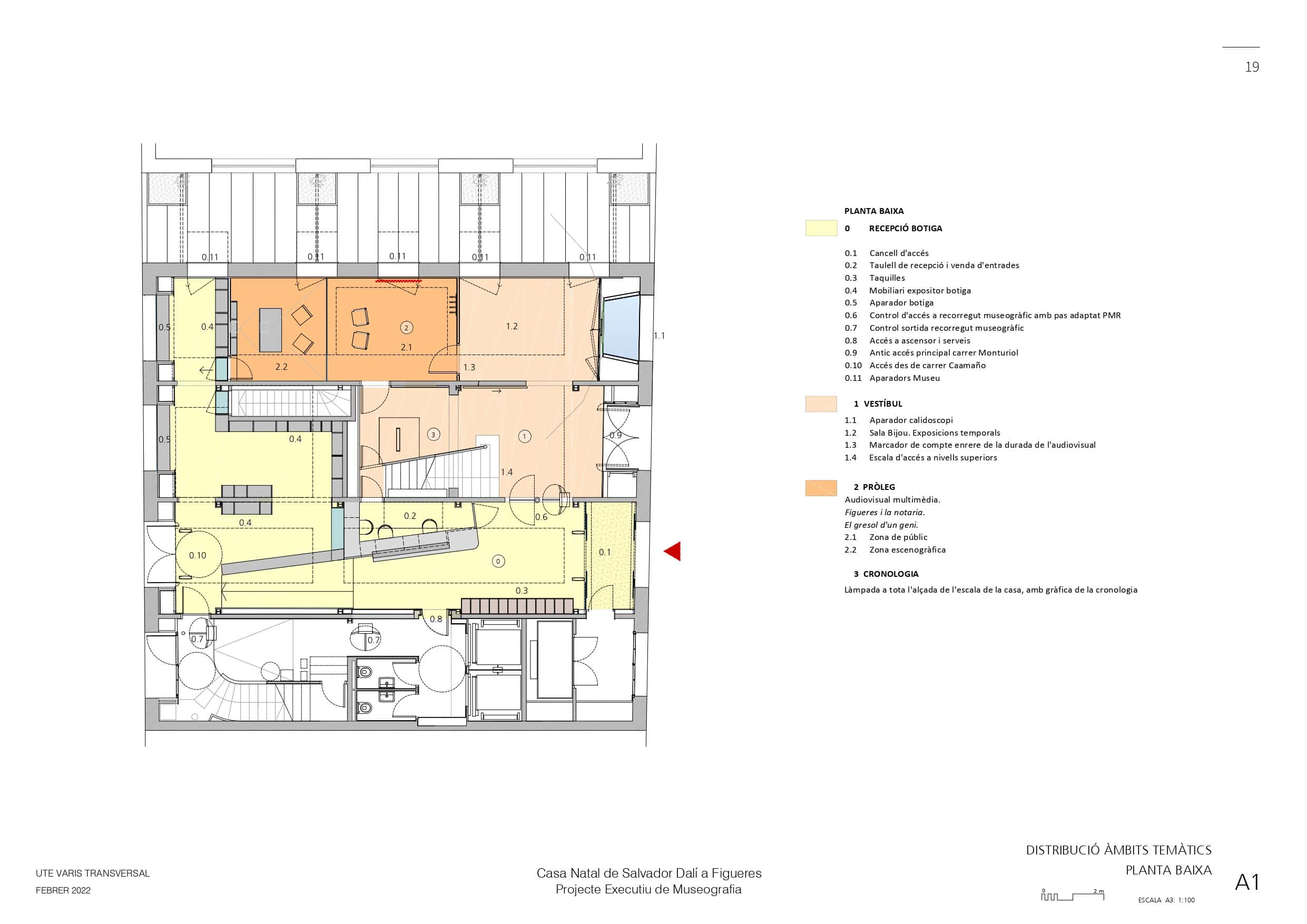
Casa Natal Salvador Dalí

La Casa Natal Salvador Dalí, inaugurada el dia 20 d’octubre de 2023, és un viatge de descobriment, un relat bategant, un trajecte visual i sonor pels diferents prismes d’un personatge tan universal com polièdric.
Hi trobaràs una ruta guiada on imatges, espais i objectes comuniquen, amb hologrames i finestres que parlen, mappings i efectes visuals, calidoscopis gegants i paisatges immersius.
Un espai únic al món on es despleguen les mil cares de Salvador Dalí. Conèixer l’artista per entendre l’obra, dialogar amb el Dalí més íntim per accedir al geni. De la infància al bany de masses, de Figueres al món… Amb els sentits ben oberts, prepara’t: ens submergim!


















